×

Meyer Elementary School Window And Door Replacement

Categories: ,

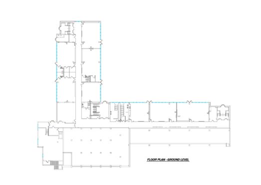
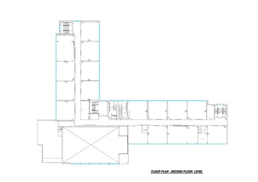
Citadel provided all Architectural and Engineering services necessary for the replacement of windows and doors throughout the school.

Service: Architectural and Engineering
Client: Keystone Plus Construction / DC DGS
Size: --
Location: Washington, DC
Year: --
Role: --

Citadel offers a full range of A.E. and construction services that fosters innovative structures that are both functional and aesthetically pleasing. Through our unique innovative process, we help to develop intimate

Scroll to Top